Monumentaal Grachtenpand op de Singel, Amsterdam

Renovatieproject

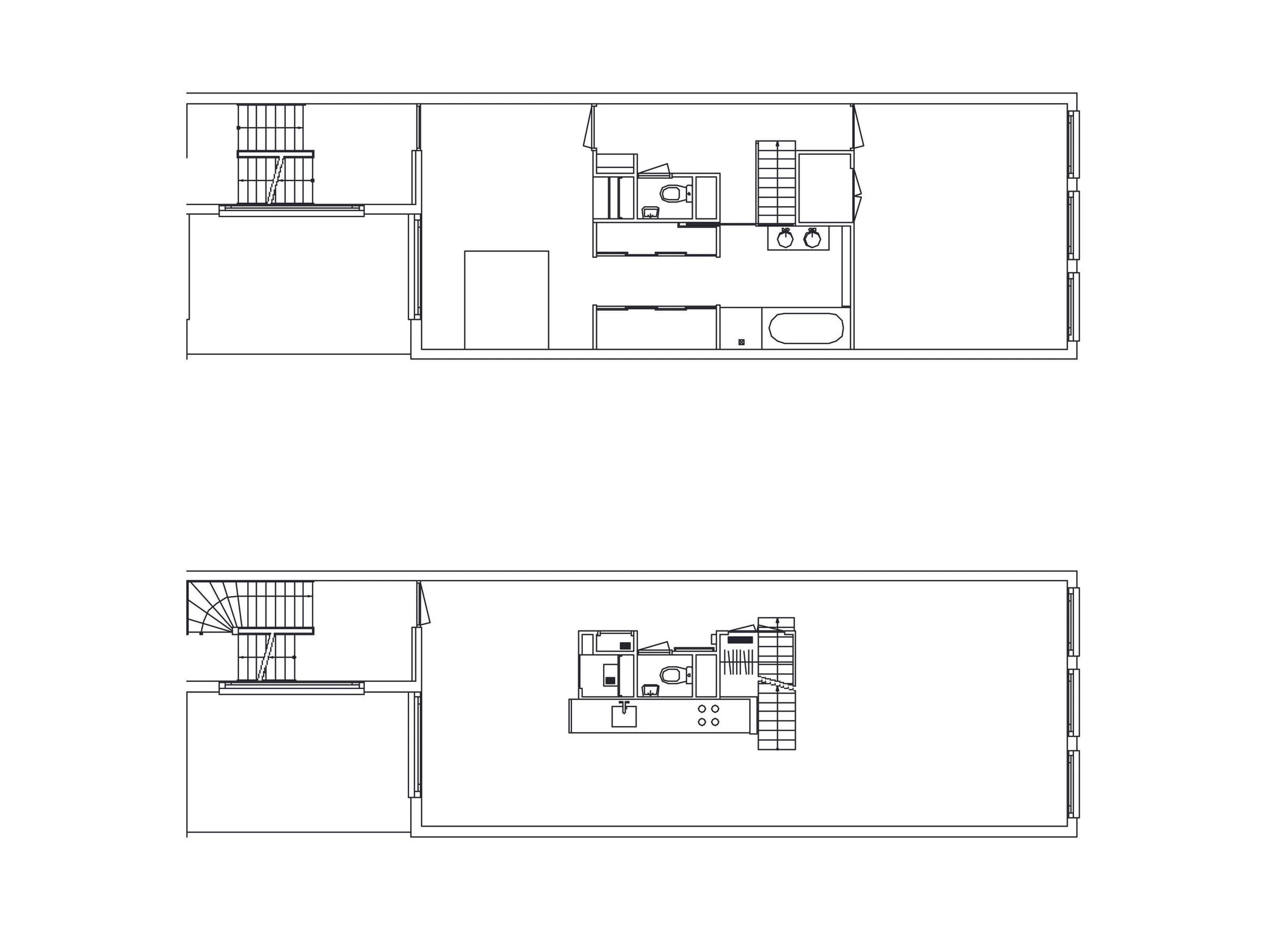
In de jaren tachtig kocht een aantal mensen gezamenlijk een grachtenpand met achterhuis aan de Singel in Amsterdam. Het pand was oorspronkelijk een pakhuis en de verschillende ruimten werden onderling verdeeld. Het was een ingrijpende verbouwing. In het voorhuis werden etages samengevoegd. Het pand werd compleet gestript en opnieuw opgebouwd. De bewoners wilden graag een moderne, strak ogende trap tussen bestaande balken, in een bestaand trapgat. ‘’Uiteraard deden we dat in overleg met Monumentenzorg, want in zo’n historisch pand uit (...jaartal) mag je niet zomaar ergens een trap maken.’’ 

Janneke: ‘’Het was erg leuk om deze renovatie te doen. Als je zo’n gebouw stript, zie je als het ware de ingewanden, het skelet. En daarna kun je het weer lekker opbouwen naar de wensen van de bewoners.’’ Deze bewoners, een echtpaar, hadden allebei hun eigen ideeën. Janneke: ‘’Dat moest ik bij elkaar krijgen en begeleiden tot een goed eindresultaat. Het was een heel proces; een verbouwing kan best stressvol zijn voor de bewoners zelf, omdat er heel veel bij kijken komt. Dat begeleid ik van begin tot eind. En gelukkig waren ze daarna erg blij met het resultaat.’’